相关产品推荐
产品详情
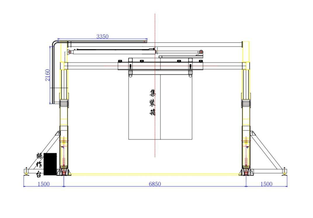
集装箱翻转机 九成新 40吨加固 双道
温馨提示:
平台货源均为卖方告知或由会员自行发布,建议您在购买商品前当面验货再交易,谨防交易风险。








120000