相关产品推荐
产品详情
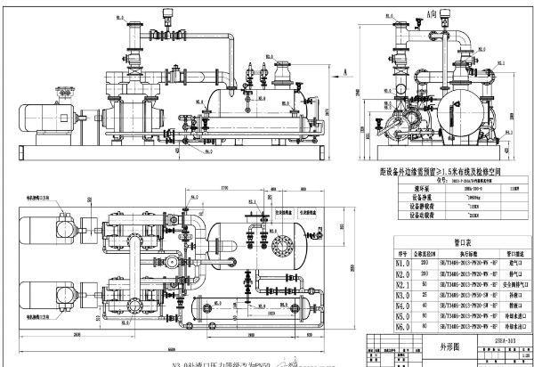
该汽提塔真空泵(真空机组)为烟台益大新材料有限公司15万吨/年高端电极前驱体智能一体化项目糠醛系统由我司采购配套设备。因我司工艺变更,糠醛系统未建设故我司采购的2台真空机组目前处理闲置状态。该真空机组目前存放于我司项目仓库,全新未拆封并由篷布覆盖。详见配置清单。如有意向,请电联或面议。
温馨提示:
平台货源均为卖方告知或由会员自行发布,建议您在购买商品前当面验货再交易,谨防交易风险。






60/万元